不動産購入 土地(事業用地・住宅用地)を探す 検索結果一覧 浜松市中央区大島町
土地 浜松市中央区大島町
- 大規模既存集落該当
◆【マストレ本社】◆
積志地区の大規模既存集落該当地(青地)
- 販売価格
- 1,000万円
- 所在地
- 浜松市中央区大島町
- 沿線・最寄駅/バス・徒歩
- 遠鉄 西ケ崎駅/バス遠州鉄道バス 大島町停 乗車 45分 - 徒歩 5分
- 土地面積/建築条件
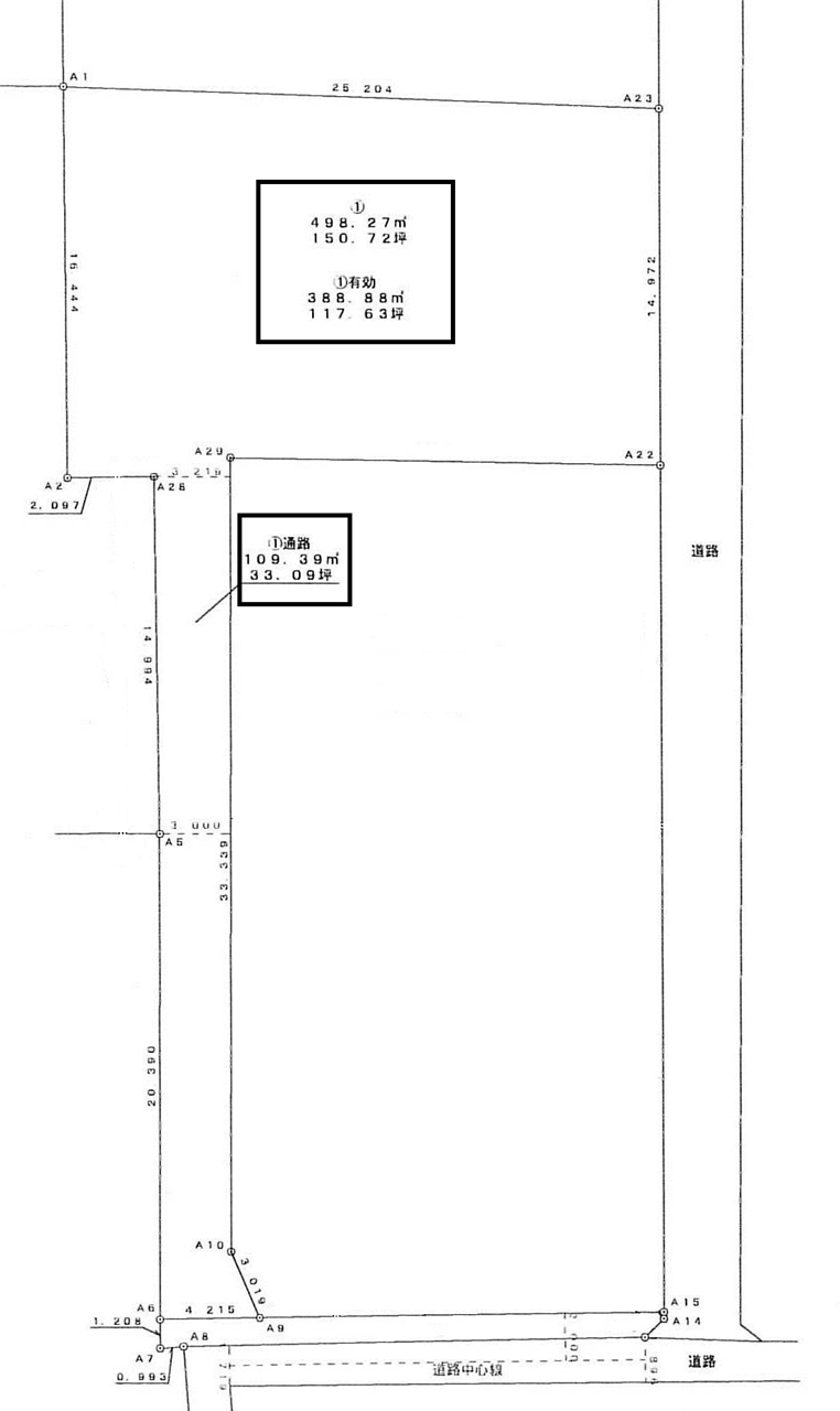
- 498.27㎡[150.72坪](公簿)/無し
| 所在地 | 浜松市中央区大島町 |
|---|---|
| 沿線・最寄駅/バス・徒歩 | 遠鉄 西ケ崎駅/バス遠州鉄道バス 大島町停 乗車 45分 - 徒歩 5分 |
| 販売価格 | 1,000万円 |
| 土地面積 | 498.27㎡[150.72坪](公簿) |
| 建ぺい率/容積率 | 60%/ 200% |
| 建築条件 | 無し |
| 最適用途 | 住宅用地 大規模既存集落 |
| 仲介手数料 | 396,000円(税込) |
| その他費用 | - |
| 私道面積 | - |
| セットバック | 有り 6.3300m2 |
| 現況 | 更地 |
| 土地権利 | 所有権 |
| 地目 | 畑 |
| 都市計画 | 市街化調整区域 |
| 用途地域 | 指定無 |
| 接道 |
南側/公道に接道 |
| 国土法による許可または事前届出 | 不要 |
| 法令上の制限 | 農地法 |
| 設備 | プロパンガス/下水道 |
| 近隣施設 | - |
| 備考 | 大規模既存集落該当地、青地農地、分筆前のため面積増減の可能性あり 下水道受益者負担金未納 500円/m2 東側道路は法定外道路ですが車両通行は可能及び東側道路側に駐車可 |
| 中学校 | 中郡中学校 |
| 小学校 | 中郡小学校 |
| 取引態様 | 一般媒介 |
| 引渡条件 | 更地渡し |
| 引渡日 | 要相談 |
| 管理ID | 10292-154 |
| 情報有効期限 | 2026年07月20日 |
※各種情報と現況に差異がある場合は、現況優先となります。










